Talent is a pursued interest. Anything that you are willing to practice, you can do.
- Bob Ross
We don't practice much, we prefer to play. Much of the golf world does enjoy or wish to practice and we've helped many clients create and improve their practice facilities. This is also the place most get their start. We'd prefer there were more places of play for beginners (see our unconventional projects).
Matt Swanson's country club for an hour. The above after then before images show the transformation of a dilapidated par 3 golf course into the best practice center in Houston, according to the Houston Chronicle and it's readers. We created a premium range with fairway corridors and an enormus natural grass tee. For the short game area we created two 8,000 square foot undulated ultra dwarf putting surfaces with practice bunkers.
Below are a series of images from our many projects that have involved practice and their facilities. The projects have ranged from getting a facility ready for the best players in the world and the Houston Open, a $30MM private renovation, affordable municipal family fun projects, to ones own back yard.
We were project managers for the Astros Golf Foundation to finish the range in time for the Houston Open.
The new double decker range structure designed by Robert McKinney.
The first green at the new First Tee teaching facility.
Left side of the range during the Houston Open.
Right side during the Houston Open.
The new putting green and First Tee building Sunday evening after the Houston Open.
Houston Open practice
Practice on a regular day at Memorial Park.
Finished short game practice area at Fox Hills near Ann Arbor, MI.
A fine place to practice.
The plan at Fox Hills included their new academy building.
A close up of the greens and bunkers from above.
Joe Hancock led the construction for the project.
The youth clinics make great use of the area.
Our work even made the news.
Joe Hancock can do it all!
This is the new practice area at River Oaks Country Club.
See below for the before/after. The range expansion with new practice area was a large impetus for the overall renovation.
This is a driving range target green! (the tree was moved to there)
There is a great kids golf camp in the spring + summer.
They learn all aspects of the game.
The ROCC range.
An intricate matting system.
There are always more details to accommodate the members.
There was a lot of work to rebuild the range.
“There is no I or me in Mike’s thoughts or work. He shows up knowing that we have a problem or a challenge, and that we need help. I am thankful that he is a part of Champions.”
Jackie Burke, Jr. (+ Charles Joachim!)
Grading plan to expand the range tee and relocate the chipping green.
Charles Joachim mentored four assistants during out time together.
Plan of the overall improvements. The old range tee was skewed also.
New chipping green.
GPS is a great tool for any project.
Mr. Burke always had a story for me, usually about the golf business. He catered his great stories to everyone's interests. He has a lot of stories.
Native Thistle outside the maintenance area.
A view of the Thistle from the top.
Swanson's short game area. I rough shaped and finished these two greens.
Growing in the short game area.
Sprigging after sodding on the short game area.
Finish shaping the short game area.
Swanson needed someone to grow-in the facility, I couldn't have done it without Mahaffey's guidance.
New entrance statement and water feature.
Matt Swanson and Michael Brown overseeing the range sprigging.
John Freeman helping with equipment and much more. We had a ton of support.
Before – Concept – After
Final yardage guide
Sodding a bunker
A complex schedule with lighting, netting, construction, irrigation, grassing to opening.
The Traditions Club range became eroded through the middle down its steep slopes.
After our work is above, before is below.
Don Mahaffey suggested utilizing ridges to fix the drainage and support the green targets.
Jackson Park's new clubhouse with our practice support.
New range structure
Trouble areas identified for range netting.
Texas City's new family golf area. Putting and pitch-n-putt courses on donated land.
The 13,000 sft putting course.
Pitch-n-putt greens
The existing range hit onto the golf course.
Our recommendation swapped identical holes and fixed the range, added a teaching center and expanded parking.
We were commissioned to find developable land by shrinking the range. First hole shifted with proposed practice areas.
Commissioned master plan to utilized new land. We found 3 new holes to enlarge the range.
New holes and range location options shown.
Make better use of the practice area by expanding to a family golf course and a 50% enlarged range tee.
Golf can be just as enjoyable on artificial turf. Corporate client green picture. A Heinz development.
We worked with Eddie Pelz and Synlawn to have this green complex constructed.
A residential green.
Finishing the back yard green, again with Eddie Pelz.
The finished back yard green, you can see some of the contour not prevalent in the typical synthetic green.
Corporate client with a confined space, still makes a fun course.
View of the green and building.
Proposed new private practice facility.
A great facility if the abandoned course across the street were acquired.
An option to light the range, from above and ground level.
To practice any art, no matter how well or badly, is a way to make your soul grow.
- Kurt Vonnegut
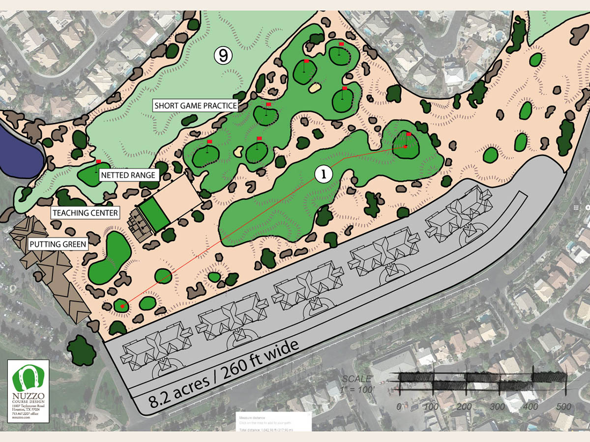
Below are two images, after and before from our project management work at River Oaks Country Club. One of the drivers of the Fazio redesign project was the expanded range and practice area. In order to expand this area three new holes needed to be found within the north western portion of the site. The new holes also required some other routing changes. The items that can be seen below are the expanded range, new 3 green practice area, 4 hole short course, expanded clubhouse, relocated and new teaching center, reconfigured mainteance area, and a new event lawn. Changes to the course can also be seen by 9 and 18 greens, 10 tee and the elimination of old holes 11 + 12. Lastly the common areas were expanded and beautified behind the club by shifting the cart tunnel entrances that connect the front to back nines. We helped to keep everything built with quality, on budget, and on schedule.
Our client wanted his own golf course, just for himself, in the middle of his ranch near the Gulf coast of Texas.
He played almost every day for 10 years.
The very few who got to visit loved it too.
#1 Course in Texas – Golf Magazine
On-site lead associate for Renaissance Golf Design of historic Memorial Park in Houston, Texas with Tom Doak and Brooks Koepka for the City of Houston and the Astros Golf Foundation in support of the PGA Tour's 2020 (and beyond) Houston Open